OPORTUNIDAD Local comercial en Pozo
USD 95.000 - EN VENTA
Descripción
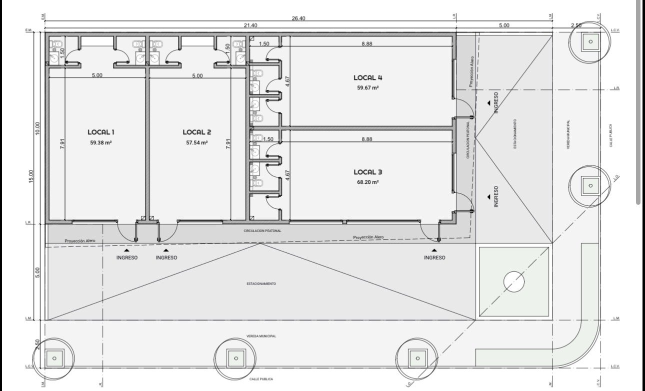
Supra ofrece en venta local comercial en POZO
Ubicado en Docta Avenida Mz 94, frente a espacio verde, sobre una Boulevard, con mucha visibilidad
Apto para comercio y gastronomía, con posibilidad de realizar un entrepiso al ser doble altura, contara con estacionamiento de cortesía para clientes.
Conjunto de 4 Locales comerciales, consultar precios y disponibles
Estima fin de obra en Diciembre 2026
Consultame mas información y vamos a conocer la ubicación del proyecto y te comparto mas información.
| Detalles | |
|---|---|
| Código | KP477979 |
| Categoría | Locales comerciales |
| Estado | Activa |
| Ubicación | Docta |
| Barrio | Docta Urbanización |
| Localidad | Córdoba, Córdoba |
| Tipo de operación | En venta |
| Acepta permuta | Sí |
| Ambientes | 2 |
| Baños | 2 |
| Piso | No definido |
| Pisos en el edificio | 1 |
| Mts totales (mt²) | 60.00 |
| Mts cubiertos (mt²) | 59 |
| Tamaño terreno (mt²) | 60 |
| Ancho terreno (mts) | 5.00 |
| Largo terreno (mts) | 8 |
| Año de construcción | 2026 |
| Nueva construcción / A estrenar | 1 |
16 Visitas al momento